Kontakt
Nr oferty: 122743/3877/OMS

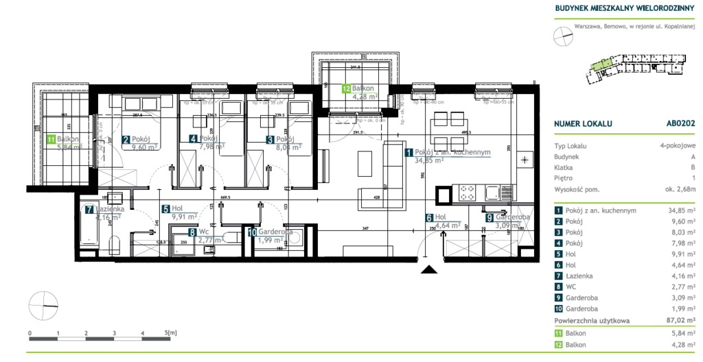
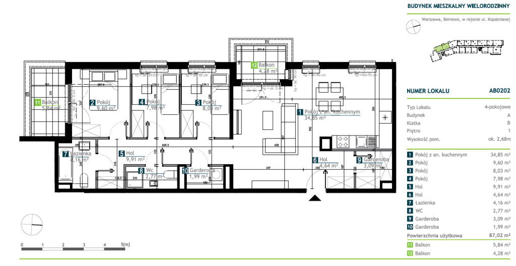
4 pokoje, Bemowo. 2027, Metro

Bemowo, ul. Kopalniana zobacz na mapie

1 390 000 PLN

Szczegóły oferty

Cena:
1 390 000,00 zł
Powierzchnia:
87,02 m2
Cena za m2:
15 973,34 zł
Rok budowy:
2027
Liczba pięter:
3
Piętro:
2
Garaż/Miejsca parkingowe:
tak
Rynek:
Pierwotny
Rodzaj budynku:
Budynek apartamentowy
Liczba pokoi:
4
Typ kuchni:
Aneks
Id oferty:
122743/3877/OMS

Opis

Umów się na spotkanie i sprawdź nasze promocje!!

Na sprzedaż 4 pokojowy apartament przy nowopowstającej linii metra na Bemowie. 
Oddanie w 2 kwartale 2027 roku

Zakup bezpośrednio od dewelopera. 
Bez prowizji i bez podatku PCC
W mojej ofercie posiadam wszystkie dostępne mieszkania w tej inwestycji.


Nowoczesne mieszkania na Bemowie – komfort, wygoda i idealna lokalizacja
Zamieszkaj w nowej, kameralnej inwestycji na warszawskim Bemowie – miejscu, które łączy spokój codziennego życia z doskonałym dostępem do miejskiej infrastruktury.
Świetna lokalizacja:
  • Zaledwie 8 minut spacerem do stacji metra Chrzanów
  • 5 minut pieszo do szkoły podstawowej
  • 2 minuty jazdy samochodem do najbliższego supermarketu
  • 8 minut rowerem do Parku Górczewska – idealnego na weekendowe spacery i aktywny wypoczynek
Nowy budynek został zaprojektowany z myślą o funkcjonalności i estetyce – przestrzeń, która zachwyca przemyślanym układem i dbałością o każdy detal.
Dostępne metraże i układy:
Od kompaktowych mieszkań 35 m² idealnych dla singli, po przestronne, 4-pokojowe lokale do 100 m² – stworzone z myślą o rodzinach. Każde mieszkanie posiada prywatną przestrzeń zewnętrzną w postaci balkonu, loggii lub ogródka.
W okolicy wszystko, czego potrzebujesz:
Sklepy, restauracje, szkoły, przedszkola, ścieżki rowerowe oraz tereny zielone – m.in. Glinianki Sznajdra i Park Górczewska.
Blisko znajdują się także przychodnie, punkty usługowe i siłownie, co znacząco podnosi codzienny komfort życia.
Technologia w standardzie:
Wszystkie mieszkania wyposażone są w system smart home Appartme, który pozwala m.in. zdalnie sterować temperaturą, automatycznie odcina wodę podczas nieobecności domowników oraz umożliwia szybkie wyłączenie oświetlenia i prądu – dla bezpieczeństwa i oszczędności.

Potrzebujesz pomocy przy wyborze kredytu hipotecznego? Nasi wykwalifikowani doradcy finansowi z ponad 15 letnim doświadczeniem bezpłatnie pomogą w przejściu przez cały proces kredytowy i w wyborze najlepszej oferty.
Współpracujemy również z firmami zajmującymi się kompleksowym wykończeniem wnętrz.

Zapraszam do kontaktu!

Niniejsze ogłoszenie nie stanowi oferty w rozumieniu Kodeksu Cywilnego, lecz ma charakter informacyjny.

Przedstawione wizualizacje i grafiki mają charakter wyłącznie poglądowy i stanowią wyłącznie materiał pomocniczy, ułatwiający zorientowanie się w ogólnym wyglądzie oferowanej nieruchomości.

Niniejsze ogłoszenie wraz z jego elementami jest własnością Północ Nieruchomości Sp z o.o. lub podmiotu współpracującego. Wszelkie prawa zastrzeżone. Kopiowanie, rozpowszechnianie oraz korzystanie z niniejszych materiałów w jakikolwiek inny sposób wykraczający poza dozwolony użytek określony przepisami ustawy z 4 lutego 1994 r. o prawie autorskim i prawach pokrewnych (Dz. U. 1994, nr 24 poz. 83 z późn. zm.) bez pisemnej zgody Północ Nieruchomości Sp z o.o. lub podmiotów współpracujących jest zabronione i może stanowić podstawę odpowiedzialności cywilnej oraz karnej.

Niniejsze materiały stanowią tajemnicę przedsiębiorstwa PÓŁNOC NIERUCHOMOŚCI Sp. z o.o. w rozumieniu ustawy z dnia 16 kwietnia 1993 r. o zwalczaniu nieuczciwej konkurencji (Dz. U. z 2003 r., Nr 153, poz. 1503 z późn. zm.).

Mapa

Zapytaj o tę ofertę

Lub zadzwoń