Kontakt
Nr oferty: 122071/3877/OMS

Apartament / taras z widokiem na park / 71,61 m2

Wrocław, al. Ludomira Różyckiego zobacz na mapie

2 094 640 PLN

Szczegóły oferty

Cena:
2 094 640,00 zł
Powierzchnia:
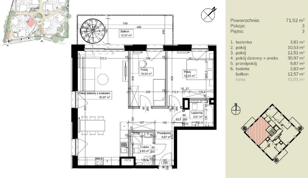
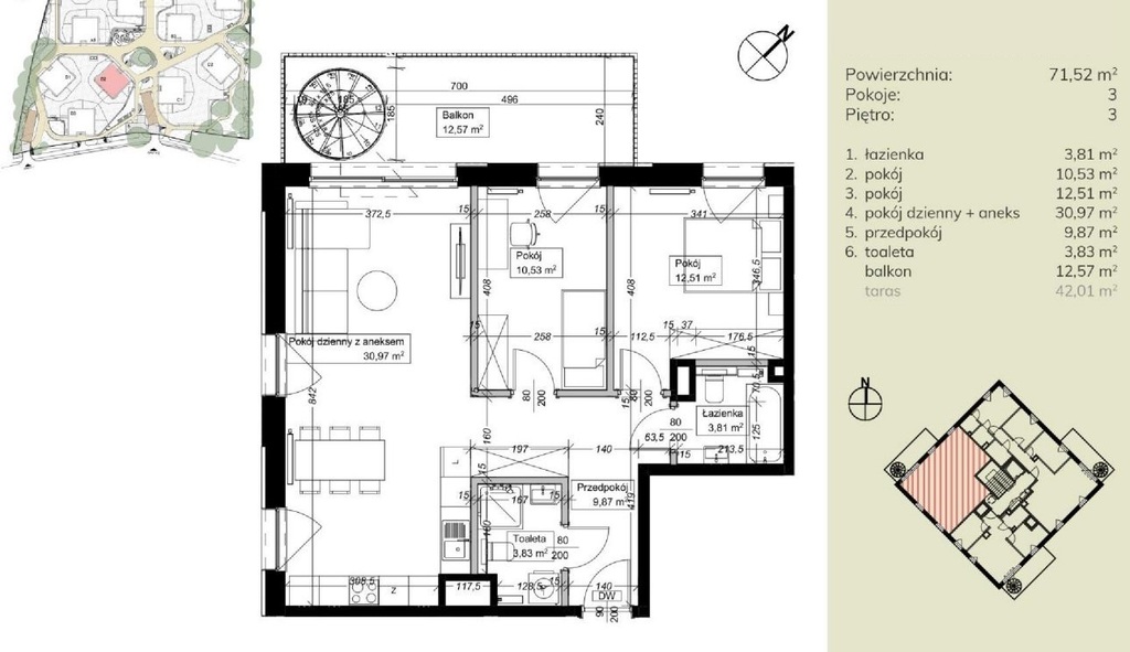
71,61 m2
Cena za m2:
29 250,66 zł
Rok budowy:
2024
Liczba pięter:
3
Piętro:
3
Rynek:
Pierwotny
Rodzaj budynku:
Budynek apartamentowy
Liczba pokoi:
3
Winda:
tak
Id oferty:
122071/3877/OMS

Opis

CO SPRZEDAJEMY?
Luksusowy apartament o powierzchni 71,61 m2 z balkonem i tarasem na dachu, zlokalizowany na trzecim ostatnim piętrze nowopowstałego budynku apartamentowego.

BEZ PROWIZJI OD KLIENTA KUPUJĄCEGO!


GDZIE ZNAJDUJE SIĘ MIESZKANIE?
Położone jest w urokliwej i dobrze skomunikowanej części Wrocławia w otoczeniu parku Szczytnickiego. 
Cała inwestycja została oddana do użytku w IV kw. 2024 r. i zlokalizowana jest bezpośrednio przy al. L. Różyckiego i linii tramwajowej łączącej tę część miasta z Placem Grunwaldzkim i resztą śródmieścia.
W bliskiej okolicy znajdują się sklepy, szkoły, punkty gastronomiczne i przede wszystkim tereny zielone oraz miejsca rekreacji - Park Szczytnicki.

JAKI JEST STANDARD?
Mieszkanie jest sprzedawane w stanie deweloperskim podwyższonym.
Lokale są wyposażone m.in w aluminiowe okna trzyszybowe, grubsze ściany działowe, drzwi antywłamaniowe, wideodomofon i wiele innych. 
Do mieszkania przynależy balkon o powierzchni 12,57 m2 oraz taras na dachu budynku o powierzchni 42,01 m2.
Cała inwestycja jest nowoczesna, zrealizowana w wysokim standardzie wykończenia wraz z zastosowaniem rozwiązań smart home. 
W budynku będą łącznie 133 mieszkania o powierzchni przedziale od 41 do 108 m2.
Do dyspozycji mieszkańców będą miejsca w garażu podziemnym.

Z JAKICH POMIESZCZEŃ SIĘ SKŁADA?
- pokój dzienny z aneksem kuchennym i częścią do spania (30,97 m2)
- pokój 1 (10,53 m2)
- pokój 2 (12,51 m2)
- przedpokój (9,87 m2)
- WC (3,83 m2) 
- łazienka z WC (3,81 m2)

- balkon (12,57 m2)
- taras (42,01 m2)


CO ZNAJDUJE SIĘ W NAJBLIŻSZYM OTOCZENIU?
- przystanki tramwajowe (9, 12, 13, 17) oraz autobusowe (111, 116, 121, 131, 145, 146, 149, 151, 241, 253, 255, 259, 911, 921, D) 
- Rynek Wrocławia (3700 m)
- Pasaż Grunwaldzki (1400 m)
- AWF (1000 m)
- ZOO (1400 m)
 

Zapraszam na prezentację.


BEZPŁATNIE pomagamy w uzyskaniu najkorzystniejszego kredytu na zakup nieruchomości.

Niniejsze ogłoszenie nie stanowi oferty w rozumieniu Kodeksu Cywilnego, lecz ma charakter informacyjny.

Przedstawione wizualizacje i grafiki mają charakter wyłącznie poglądowy i stanowią wyłącznie materiał pomocniczy, ułatwiający zorientowanie się w ogólnym wyglądzie oferowanej nieruchomości.

Niniejsze ogłoszenie wraz z jego elementami jest własnością Północ Nieruchomości Sp z o.o. lub podmiotu współpracującego. Wszelkie prawa zastrzeżone. Kopiowanie, rozpowszechnianie oraz korzystanie z niniejszych materiałów w jakikolwiek inny sposób wykraczający poza dozwolony użytek określony przepisami ustawy z 4 lutego 1994 r. o prawie autorskim i prawach pokrewnych (Dz. U. 1994, nr 24 poz. 83 z późn. zm.) bez pisemnej zgody Północ Nieruchomości Sp z o.o. lub podmiotów współpracujących jest zabronione i może stanowić podstawę odpowiedzialności cywilnej oraz karnej.

Niniejsze materiały stanowią tajemnicę przedsiębiorstwa PÓŁNOC NIERUCHOMOŚCI Sp. z o.o. w rozumieniu ustawy z dnia 16 kwietnia 1993 r. o zwalczaniu nieuczciwej konkurencji (Dz. U. z 2003 r., Nr 153, poz. 1503 z późn. zm.).

Mapa

Zapytaj o tę ofertę

Lub zadzwoń