Kontakt

Funkcjonalny Dom na Dużej Działce dla Rodziny!

Szyszki zobacz na mapie

640 000 PLN

Cena:
640 000,00 zł
Powierzchnia:
120,00 m2
Cena za m2:
5 333,33 zł
Powierzchnia działki:
5 600,00 m2
Rok budowy:
2011
Liczba pięter:
1
Liczba pokoi:
5
Stan budynku:
Do zamieszkania
Typ domu:
Wolnostojący
Ciepła woda:
tak
Id oferty:
42351/3877/ODS
Opis
Zapraszam do zapoznania się z ofertą sprzedaży uroczego, małego domu jednorodzinnego, który łączy funkcjonalność z przytulnym klimatem.

Ten wyjątkowy dom z urządzonym już ogrodem to idealne miejsce dla osób poszukujących spokoju i komfortu.

Dom położony na dużej działce, co sprawia, że masz dużo możliwości jej urządzenia! Możliwość dostosowania działki do różnych celów - od rekreacyjnych po gospodarcze. To idealne rozwiązanie dla osób ceniących wszechstronność i elastyczność. Większa przestrzeń wokół domu to także większe bezpieczeństwo, szczególnie dla dzieci i zwierząt domowych, które mogą swobodnie bawić się na własnym terenie.

Lokalizacja:

Dom położony jest w miejscowości Szyszki, w gm. Stoczek Łukowski, w otoczeniu zabudowy jednorodzinnej oraz otwartej przestrzeni, a jednocześnie blisko wszelkich udogodnień miejskich.

Znajduje się zaledwie 26 minut do Łukowa i 10 minut do Stoczka Łukowskiego, co zapewnia łatwy dostęp do szkół, sklepów, restauracji oraz komunikacji miejskiej.
W pobliżu przystanek PKS, Szkoła Podstawowa, kościół, sklep.

Opis Nieruchomości:

Powierzchnia użytkowa domu: 120m²
Działka: 5600 m²

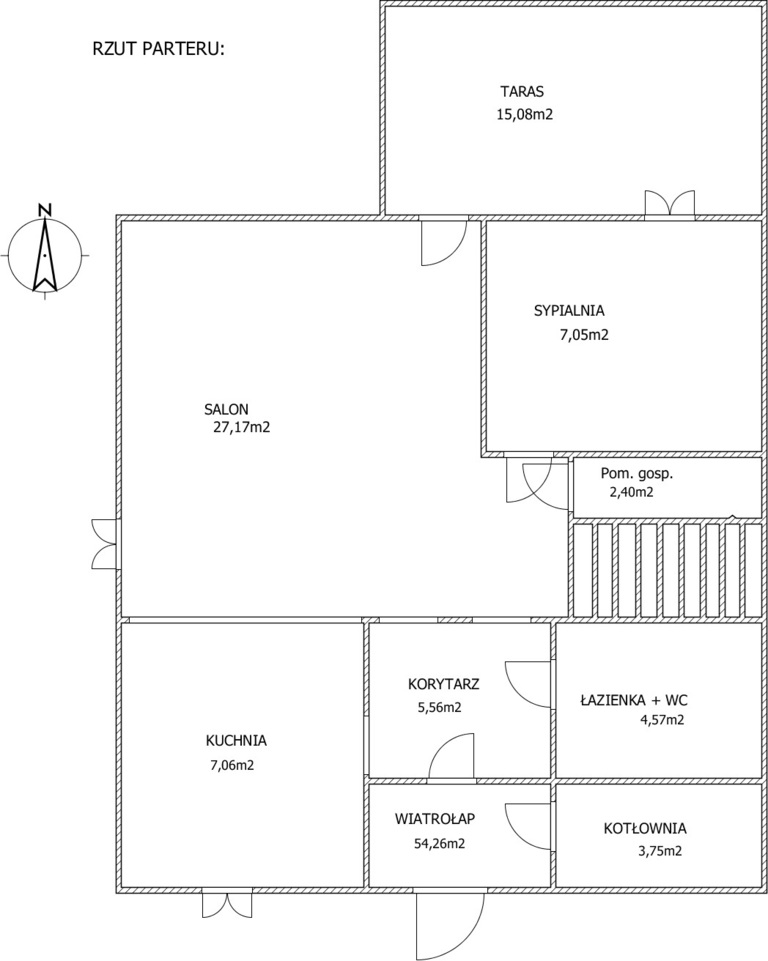
Układ:


Parter:
Salon z dużym tarasem, otwarta i widna kuchnia, sypialnia, łazienka, pomieszczenie gospodarcze, wiatrołap, korytarz z klatką schodową prowadzącą na
Piętro:
pokój dziecka, pokój biurowy, pokój z balkonem, łazienka, pomieszczenie gospodarcze i przestronny korytarz z balkonem.

Ogród:
Urządzony i zadbany, idealny na rodzinne spotkania i relaks.
Działka ogrodzona,
częściowo wyłożona kostką brukową, na której znajduje się wolnostojący blaszany garaż. W dalszej części znajduje się oddzielona bramą część rolna z ogrodem warzywnym.

Wnętrze:
* Dom został zaprojektowany z myślą o funkcjonalności i komforcie.
* Przestronny salon z wyjściem na zadaszony taras.
* Kuchnia jest w pełni umeblowana i otwarta, co sprzyja wspólnemu spędzaniu czasu. Przestrzeń między kuchnią i salonem daje możliwość wydzielenia jadalni.
* Sypialnie są przytulne i doskonale nadają się na prywatne oazy spokoju.

W tym domu każde miejsce zostało wykorzystane w bardzo praktyczny sposób.

Atuty Domu:

- Dom gotowy do zamieszkania: wyposażony, umeblowany, do częściowego doposażenia
- Ogrzewanie:
piec węgiel/drewno oraz ogrzewanie podłogowe w kuchni, na korytarzu i w łazienkach.
- Dom posiada kolektory słoneczne, jako dodatkowy, oszczędny sposób grzania wody
- Przyjazne otoczenie:
Bezpieczna i cicha okolica z dostępem do przyrody
- Przestronny ogród:
Doskonałe miejsce do zabawy dla dzieci, uprawy roślin i odpoczynku

Cena: 640 000zł
 
To tu poczujesz, że chcesz zostać na dłużej. Zachęcam do kontaktu i umówienia się na prezentację domu.

A jeśli nie możesz pojawić się na prezentacji teraz, zapytaj mnie o Spacer Wirtualny!

 
Pomagamy w formalnościach związanych z uzyskaniem kredytu na zakup nieruchomości.
Nasz doradca kredytowy bezpłatnie pomoże Ci sprawdzić zdolność kredytową i przedstawi najkorzystniejszą ofertę z ponad 10 banków!

Posiadasz podobną nieruchomość? Zadzwoń i skorzystaj z bezpłatnej konsultacji, gdzie odpowiem na pytania dotyczące Twojej nieruchomości, jej ceny oraz procesu sprzedaży.


Nie zwlekaj, zadzwoń już teraz!
 
Edyta Bancerz
Doradca ds. nieruchomości
tel. 885 851 158
e-mail: ebancerz@polnoc.pl
Północ Nieruchomości oddział Biała Podlaska
 
 

Niniejsze ogłoszenie nie stanowi oferty w rozumieniu Kodeksu Cywilnego, lecz ma charakter informacyjny.

Przedstawione wizualizacje i grafiki mają charakter wyłącznie poglądowy i stanowią wyłącznie materiał pomocniczy, ułatwiający zorientowanie się w ogólnym wyglądzie oferowanej nieruchomości.

Niniejsze ogłoszenie wraz z jego elementami jest własnością Północ Nieruchomości Sp z o.o. lub podmiotu współpracującego. Wszelkie prawa zastrzeżone. Kopiowanie, rozpowszechnianie oraz korzystanie z niniejszych materiałów w jakikolwiek inny sposób wykraczający poza dozwolony użytek określony przepisami ustawy z 4 lutego 1994 r. o prawie autorskim i prawach pokrewnych (Dz. U. 1994, nr 24 poz. 83 z późn. zm.) bez pisemnej zgody Północ Nieruchomości Sp z o.o. lub podmiotów współpracujących jest zabronione i może stanowić podstawę odpowiedzialności cywilnej oraz karnej.

Niniejsze materiały stanowią tajemnicę przedsiębiorstwa PÓŁNOC NIERUCHOMOŚCI Sp. z o.o. w rozumieniu ustawy z dnia 16 kwietnia 1993 r. o zwalczaniu nieuczciwej konkurencji (Dz. U. z 2003 r., Nr 153, poz. 1503 z późn. zm.).

Mapa

Zapytaj o tę ofertę

Lub zadzwoń