Kontakt
Nr oferty: 18517/3877/OLW

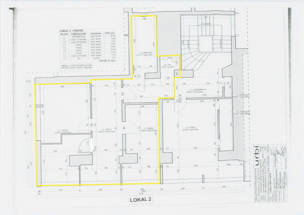
Lokal biurowy w centrum 72m2 Ip.

Ełk, Adama Mickiewicza zobacz na mapie

2 650 PLN

Szczegóły oferty

Cena:
2 650,00 zł
Powierzchnia:
72,15 m2
Cena za m2:
36,73 zł
Stan budynku:
Dobry
Rodzaj budynku:
Wieżowiec
Rynek:
Wtórny
Id oferty:
18517/3877/OLW

Opis

PÓŁNOC Nieruchomości Ełk prezentuje lokal do wynajęcia położony w ścisłym centrum Ełku u zbiegu ulicy Mickiewicza z Piłsudskiego.
Wejście do lokalu z ulicy poprzez szeroką klatkę schodową.

Usytuowany na I piętrze doskonały na działalność biurową, salon kosmetyczny, fryzjerski lub gabinet.
Lokal można dostosować do niewielkich potrzeb najemcy.

Pomieszczenia częściowo klimatyzowane lub z wymuszoną wentylacją.
Lokal składa się z 4 pokoi biurowych, zaplecza socjalnego, przestronnego korytarza (do zaadoptowania jako poczekalnia/portiernia) oraz WC.

Atuty nieruchomości to przede wszystkim:
- lokalizacja - ścisłe centrum komunikacyjne; naturalne ciągi piesze o dużym natężeniu, bliskość urzędów, sklepów itp.;
- duże witryny okienne umożliwiające rozmieszczenie reklam od strony ulicy Mickiewicza oraz Piłsudskiego;
- gotowe do użytkowania pomieszczenia biurowe.

Koszt najmu wynosi 2650zł netto + energia elektryczna i woda wg liczników oraz ogrzewanie w sezonie grzewczym proporcjonalnie do najmowanej powierzchni.
Istnieje możliwość wynajmu dodatkowego pokoju obok lokalu o powierzchni 24m2 za dodatkową opłatą.

Zapraszam do zapoznania się z wirtualnym spacerem lokalu.
https://evryplace.com/embed/imlciy

Polecam i zapraszam na prezentację.

Łukasz Dąbkowski
tel. 796 903 896

Niniejsze ogłoszenie nie stanowi oferty w rozumieniu Kodeksu Cywilnego, lecz ma charakter informacyjny.

Przedstawione wizualizacje i grafiki mają charakter wyłącznie poglądowy i stanowią wyłącznie materiał pomocniczy, ułatwiający zorientowanie się w ogólnym wyglądzie oferowanej nieruchomości.

Niniejsze ogłoszenie wraz z jego elementami jest własnością Północ Nieruchomości Sp z o.o. lub podmiotu współpracującego. Wszelkie prawa zastrzeżone. Kopiowanie, rozpowszechnianie oraz korzystanie z niniejszych materiałów w jakikolwiek inny sposób wykraczający poza dozwolony użytek określony przepisami ustawy z 4 lutego 1994 r. o prawie autorskim i prawach pokrewnych (Dz. U. 1994, nr 24 poz. 83 z późn. zm.) bez pisemnej zgody Północ Nieruchomości Sp z o.o. lub podmiotów współpracujących jest zabronione i może stanowić podstawę odpowiedzialności cywilnej oraz karnej.

Niniejsze materiały stanowią tajemnicę przedsiębiorstwa PÓŁNOC NIERUCHOMOŚCI Sp. z o.o. w rozumieniu ustawy z dnia 16 kwietnia 1993 r. o zwalczaniu nieuczciwej konkurencji (Dz. U. z 2003 r., Nr 153, poz. 1503 z późn. zm.).

Mapa

Zapytaj o tę ofertę

Lub zadzwoń