Kontakt
Nr oferty: 123164/3877/OMS

Ciche 62 m2 3 minuty do Wawelu

Kraków, Tenczyńska zobacz na mapie

1 390 000 PLN

Szczegóły oferty

Cena:
1 390 000,00 zł
Powierzchnia:
62,00 m2
Cena za m2:
22 419,35 zł
Rok budowy:
1898
Liczba pięter:
2
Piętro:
3
Rynek:
Wtórny
Rodzaj budynku:
Kamienica
Liczba pokoi:
2
Typ kuchni:
Oddzielna
Id oferty:
123164/3877/OMS

Opis


REZERWACJA

Zapraszam do obejrzenia przestronnego mieszkania na sprzedaż w zadbanej kamienicy
Lokalizacja która rzadko pojawia się w ofertach- okolice Placu na Groblach, 5 minut do Wawelu, 8 minut do Rynku Głównego
Cicha uliczka z paroma kamienicami, zwykle bez problemu zaparkujesz przed budynkiem
przy sąsiednich ulicach kawiarenki, sklepy, 5 minut na piechotę do centrum handlowego Jubilat
blisko Planty
blisko komunikacja , tramwajowa i autobusowa

obecna cena dla klienta gotówkowego

CO SPRZEDAJEMY?
Apartament o powierzchni 62 m2
dodatkowo 3m2 piwnica w cenie 
wysokie sufity- 3,3 m2
obecny rozkład 2 pokoje i oddzielna jasna kuchnia z balkonem.
mieszkanie wysokie i jasne, ponieważ jest na 3 piętrze z 4, orientacja południowa dla pokoi, północna dla kuchni
balkon
podwórko dla mieszkańców
zadbana klatka schodowa z drewnianymi, niewysokimi stopniami

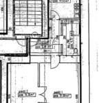
Składa się z:
- Przedpokoju 5  m2
- salonu          22 m2
- sypialni         19 m2
- łazienka        5 m2   (z małym okienkiem)

 MEDIA:
Ogrzewanie oraz ciepła woda - piec gazowy.
.

UDOGODNIENIA:
 domofon, piwnica, wewnętrzne podwórko

CO ZNAJDUJE SIĘ W NAJBLIŻSZYM OTOCZENIU?
Plac na Groblach, Wisła, Wawel
Ulica zaciszna. a cała infrastruktura, kawiarnie, restauracje i komunikacja miejska bardzo blisko!
dla konkretnych kupców oferta bez prowizji. 


Zapraszam na prezentację

Marta Bal-Kokosza
Doradca ds. Nieruchomości
tel. 512 487 566
mbal-kokosza@polnoc.pl

Niniejsze ogłoszenie nie stanowi oferty w rozumieniu Kodeksu Cywilnego, lecz ma charakter informacyjny.

Przedstawione wizualizacje i grafiki mają charakter wyłącznie poglądowy i stanowią wyłącznie materiał pomocniczy, ułatwiający zorientowanie się w ogólnym wyglądzie oferowanej nieruchomości.

Niniejsze ogłoszenie wraz z jego elementami jest własnością Północ Nieruchomości Sp z o.o. lub podmiotu współpracującego. Wszelkie prawa zastrzeżone. Kopiowanie, rozpowszechnianie oraz korzystanie z niniejszych materiałów w jakikolwiek inny sposób wykraczający poza dozwolony użytek określony przepisami ustawy z 4 lutego 1994 r. o prawie autorskim i prawach pokrewnych (Dz. U. 1994, nr 24 poz. 83 z późn. zm.) bez pisemnej zgody Północ Nieruchomości Sp z o.o. lub podmiotów współpracujących jest zabronione i może stanowić podstawę odpowiedzialności cywilnej oraz karnej.

Niniejsze materiały stanowią tajemnicę przedsiębiorstwa PÓŁNOC NIERUCHOMOŚCI Sp. z o.o. w rozumieniu ustawy z dnia 16 kwietnia 1993 r. o zwalczaniu nieuczciwej konkurencji (Dz. U. z 2003 r., Nr 153, poz. 1503 z późn. zm.).

Mapa

Zapytaj o tę ofertę

Lub zadzwoń