Kontakt
Nr oferty: 124854/3877/OMS

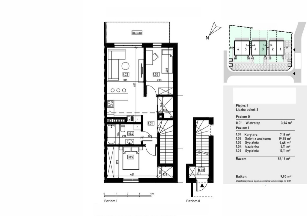
Mieszkanie / 3 pokoje / balkon / Siechnice

Siechnice, gen. Józefa Hallera zobacz na mapie

622 205 PLN

Szczegóły oferty

Cena:
622 205,00 zł
Powierzchnia:
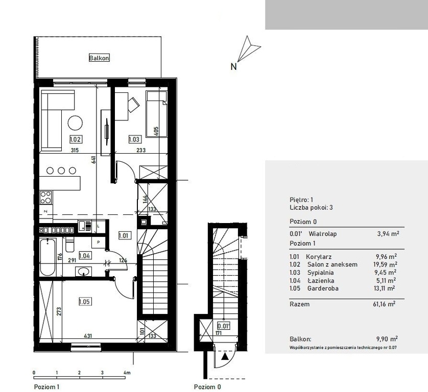
61,16 m2
Cena za m2:
10 173,40 zł
Rok budowy:
2025
Liczba pięter:
1
Piętro:
1
Garaż/Miejsca parkingowe:
tak
Rynek:
Pierwotny
Rodzaj budynku:
Niski blok
Liczba pokoi:
3
Id oferty:
124854/3877/OMS

Opis

CO SPRZEDAJEMY?
Trzypokojowe mieszkanie (61,16 m2) z balkonem i dwoma miejscami postojowymi, zlokalizowane na pierwszym piętrze inwestycji deweloperaskiej w Siechnicach. 

BEZ PROWIZJI OD KLIENTA KUPUJĄCEGO!

GDZIE SIĘ ZNAJDUJE?
Mieszkanie znajduje się w nowopowstającym budynku w Siechnicach przy ul. gen. Józefa Hallera w ramach inwestycji "Przystań Siechnice". W bliskiej okolicy zanjdują się tereny zielone, ścieżki spacerowe, jezioro Błękitna Laguna oraz placówki edukacyjne.


JAKI JEST STANDARD?
Mieszkanie jest sprzedawane w stanie deweloperskim. 
Do mieszkanie przynależy duży balkon o powierzchni 9,90 m2 oraz dwa naziemne miejsca postojowe. 
Dodatkowo mieszkania są wyposażone w drzwi antywłamaniowe, rolety (na parterze i na piętrze) - sterowane indywidualnie oraz z przycisku centralnego.
Zainstalowany zostanie również wideodomofon.


Z JAKICH POMIESZCZEŃ SIĘ SKŁADA?
POZIOM 1
- pokój dzienny z aneksem kuchennym (19,35 m2)
- pokój 1 (9,45 m2)
- pokój 2 (13,11 m2)
- łazienka z WC (5,11 m2)
- korytarz (9,96 m2)

POZIOM 0
- wiatrołap (3,94 m2)

- balkon z wyjsciem z salonu (9,90 m2)

CO ZNAJDUJE SIĘ W NAJBLIŻSZYM OTOCZENIU?
- jazioro Błękitna Laguna (400 m)
- Urząd Miejski w Siechnicach (1400 m)
- Park Miejski Zacisze (1000 m)


W inwestycji znajdować się będzie 11 mieszkań. Oddanie do użytku planowane jest na IV kw. 2025 r. 

Zapraszam na prezentację.

BEZPŁATNIE pomagamy w uzyskaniu najkorzystniejszego kredytu na zakup nieruchomości.

Adam Wnuk
PÓŁNOC Nieruchomości Wrocław Armii Krajowej
50-541 Wrocław, Aleja Armii Krajowej 6b lokal 5
tel: +48 603 562 281
e-mail: awnuk@polnoc.pl

Niniejsze ogłoszenie nie stanowi oferty w rozumieniu Kodeksu Cywilnego, lecz ma charakter informacyjny.

Przedstawione wizualizacje i grafiki mają charakter wyłącznie poglądowy i stanowią wyłącznie materiał pomocniczy, ułatwiający zorientowanie się w ogólnym wyglądzie oferowanej nieruchomości.

Niniejsze ogłoszenie wraz z jego elementami jest własnością Północ Nieruchomości Sp z o.o. lub podmiotu współpracującego. Wszelkie prawa zastrzeżone. Kopiowanie, rozpowszechnianie oraz korzystanie z niniejszych materiałów w jakikolwiek inny sposób wykraczający poza dozwolony użytek określony przepisami ustawy z 4 lutego 1994 r. o prawie autorskim i prawach pokrewnych (Dz. U. 1994, nr 24 poz. 83 z późn. zm.) bez pisemnej zgody Północ Nieruchomości Sp z o.o. lub podmiotów współpracujących jest zabronione i może stanowić podstawę odpowiedzialności cywilnej oraz karnej.

Niniejsze materiały stanowią tajemnicę przedsiębiorstwa PÓŁNOC NIERUCHOMOŚCI Sp. z o.o. w rozumieniu ustawy z dnia 16 kwietnia 1993 r. o zwalczaniu nieuczciwej konkurencji (Dz. U. z 2003 r., Nr 153, poz. 1503 z późn. zm.).

Mapa

Zapytaj o tę ofertę

Lub zadzwoń