Kontakt
Nr oferty: 119896/3877/OMS

Mieszkanie / 3 pokoje / Szczepin

Wrocław, Gnieźnieńska zobacz na mapie

839 000 PLN

Szczegóły oferty

Cena:
839 000,00 zł
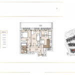
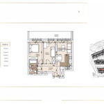
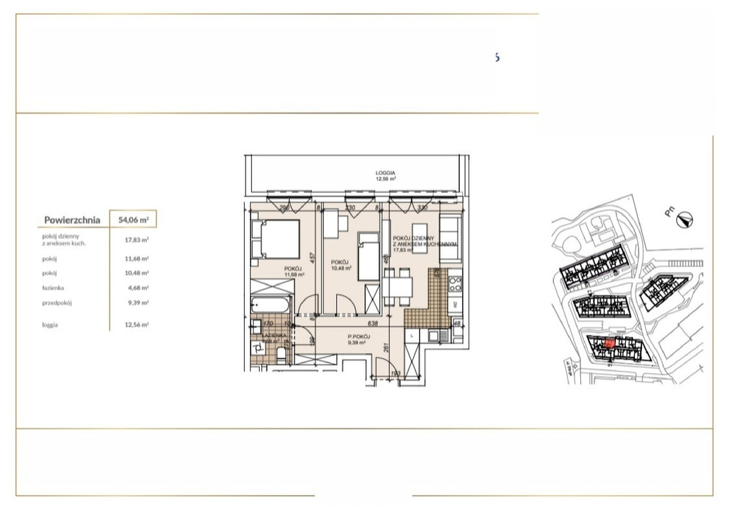
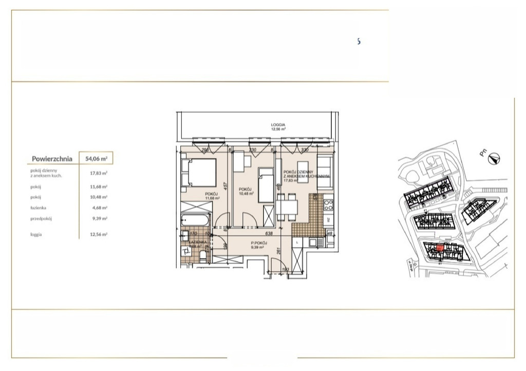
Powierzchnia:
54,06 m2
Cena za m2:
15 519,79 zł
Rok budowy:
2026
Liczba pięter:
9
Piętro:
1
Garaż/Miejsca parkingowe:
tak
Rynek:
Pierwotny
Rodzaj budynku:
Budynek apartamentowy
Liczba pokoi:
3
Winda:
tak
Id oferty:
119896/3877/OMS

Opis

CO SPRZEDAJEMY?
Trzypokojowe mieszkanie na pierwszym piętrze w nowopowstającym dziewięciopiętrowym apartamantowym budyku.


BEZ PROWIZJI OD KLIENTA KUPUJĄCEGO!

GDZIE ZNAJDUJE SIĘ MIESZKANIE?
Położone jest na wrocławskim Szczepinie przy ulicy Gnieźnieńskiej, z którego dojazd do rynku starego miasta nie zajmuje więcej niż 10 minut. W bliskiej okolicy znajdują się liczne sklepy, punkty gastronomiczne i wszystko co oferuje centrum Wrocławia.

JAKI JEST STANDARD?
Mieszkanie jest sprzedawane w stanie deweloperskim. 
Do mieszkanie przynależy duża loggia o powierzchni 12,56 m2. 
Istnieje możliwość dokupienia komóki lokatorskiej oraz miejsca postojewego w garaży podziemnym. 
Do dyspozycji mieszkańców znajdują się: plac zabaw, siłownia terenowa, ławki wraz ze organizowanymi miejscami wypoczynku.

Z JAKICH POMIESZCZEŃ SIĘ SKŁADA?
- pokój dzienny z aneksem kuchennym (17,83 m2)
- pokój 1 (11,68 m2)
- pokój 2 (10,48 m2)
- przedpokój (9,39 m2)
- łazienka z WC (4,68 m2)

- loggia z wyjsciem z każdego z trzech pokoi (12,56 m2)

CO ZNAJDUJE SIĘ W NAJBLIŻSZYM OTOCZENIU?
- przystanki tramwajowe (18, 19) i autobusowe (128, 127, 103, 245)
- Dworzec Wrocław Szczepin (800 m)
- Rynek Wrocławia (1900 m)
- C.H. Magnolia (2500 m)

W inwestycji znajdować się będzie 63 mieszkania. Oddanie do użytku planowane jest na II kw. 2026 r. 

Zapraszam na prezentację.


BEZPŁATNIE pomagamy w uzyskaniu najkorzystniejszego kredytu na zakup nieruchomości.


Adam Wnuk
PÓŁNOC Nieruchomości Wrocław Armii Krajowej
50-541 Wrocław, Aleja Armii Krajowej 6b lokal 5
tel: +48 603 562 281
e-mail: awnuk@polnoc.pl

Niniejsze ogłoszenie nie stanowi oferty w rozumieniu Kodeksu Cywilnego, lecz ma charakter informacyjny.

Przedstawione wizualizacje i grafiki mają charakter wyłącznie poglądowy i stanowią wyłącznie materiał pomocniczy, ułatwiający zorientowanie się w ogólnym wyglądzie oferowanej nieruchomości.

Niniejsze ogłoszenie wraz z jego elementami jest własnością Północ Nieruchomości Sp z o.o. lub podmiotu współpracującego. Wszelkie prawa zastrzeżone. Kopiowanie, rozpowszechnianie oraz korzystanie z niniejszych materiałów w jakikolwiek inny sposób wykraczający poza dozwolony użytek określony przepisami ustawy z 4 lutego 1994 r. o prawie autorskim i prawach pokrewnych (Dz. U. 1994, nr 24 poz. 83 z późn. zm.) bez pisemnej zgody Północ Nieruchomości Sp z o.o. lub podmiotów współpracujących jest zabronione i może stanowić podstawę odpowiedzialności cywilnej oraz karnej.

Niniejsze materiały stanowią tajemnicę przedsiębiorstwa PÓŁNOC NIERUCHOMOŚCI Sp. z o.o. w rozumieniu ustawy z dnia 16 kwietnia 1993 r. o zwalczaniu nieuczciwej konkurencji (Dz. U. z 2003 r., Nr 153, poz. 1503 z późn. zm.).

Mapa

Zapytaj o tę ofertę

Lub zadzwoń